- キッチン
- トイレ
- 床・フローリング・畳・壁紙
- 断熱・省エネ
- 洗面所
- 浴室
- 窓・ドア

工事前のDK、画像手前にテーブルがあります。居間は隣接の別室です。


広いLDK(19帖)になりました。冷蔵庫2台使いで1台がダイニング側にありますが大型の1台にしてキッチンに置く予定です。これから家具を買い替えさらに快適なお部屋に・・・(気になる位置に取れない柱がありますがテーブルや導線に影響無いようプランしています)
工事前のキッチン


工事後のキッチン(クリナップ/ラクエラW2550/食器棚もラクエラW1500)勝手口戸は交換しています
工事前の玄関


工事後の玄関
工事前の玄関ドア


工事後の玄関ドア(断熱ドア/リクシル/リシェント)
工事前のお母様寝室


工事後のお母様寝室、奥に見えるお母様と子世帯共用の納戸もリフォームしています
リフォーム前のトイレ、写真では分からないのですが扉が小さく内開きの為お母様が出入りに苦労されていました。


リフォーム後のトイレ、幅広の外開き戸になり出入りが楽に。手摺類は当初造り付けにしようとしましたが微調整出来る据え置き型へ(便器/TOTO)
リフォーム前の洗面所


リフォーム後の洗面所(洗面台/TOTO/オクターブLite)
リフォーム前の浴室


リフォーム後の浴室(窓が既存のままだとユニットバスの浴槽に埋まってしまうため小さな窓に交換、断熱サッシで寒さも解消しています)TOTO/サザナ1616サイズ
工事前の廊下


工事後の廊下
工事前の間取り


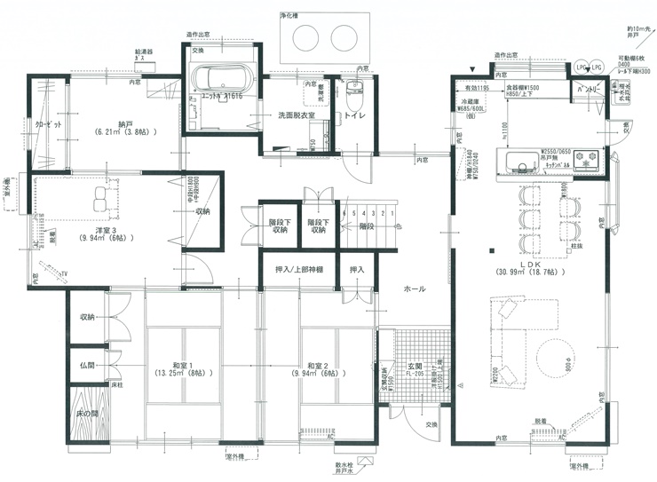
工事後の間取り

工事後の納戸
| 建物種別 | 木造戸建て | 工期 | 2.5か月 |
|---|---|---|---|
| 施工費用 | 1110万(税込) | 施工面積 | 82㎡(25坪) |
| 築年数 | 30年 | 施工先住所 | 桶川市 |
| 物件面積 | 166㎡(50坪) | 家族構成 | ご夫婦+お母様+お子様(2名) |
| リフォーム内容 | 【玄関/ホール】フローリング、壁紙、玄関ドア他 【LDK】フローリング、壁紙、システムキッチン、食器棚、間取り変更他 【トイレ】クッションフロア、壁紙、便器他 【洗面所】クッションフロア、壁紙、洗面台他 【浴室】タイル風呂をユニットバスへ、給湯器 【お母様寝室】和室を洋室へ、押入をクローゼットへ他 【納戸】和室を洋室へ、クローゼットの新設他 【その他】工事範囲全体の内窓取付・建具交換、浴室サッシ交換、勝手口戸交換・玄関ドア交換、断熱材、井戸水→上水切替、浄化槽土間コン他 |
||































